天宁寺西里 70㎡爱巢焕新:法式中古风婚房惊艳蜕变
作者:北京云赫装饰工程设计有限公司 日期:2025-02-09 11:38:25 浏览次数:2次
在天宁寺西里,一套 70 平米的小户型两居室,承载着一对热情浪漫的北京青年业主对婚房的美好憧憬。其法式中古风格的打造,堪称一场空间改造的艺术盛宴。

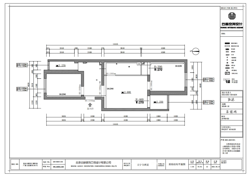
原始户型虽温馨,但老式格局难以满足业主需求,尤其在空间灵动性与功能性上有所欠缺。业主秉持对家的独特构想,开启浪漫改造之旅,而卫生间位置的变动成为改造的关键与挑战。

厨卫互换,这一在设计领域常被视为禁忌的大胆尝试,在此次改造中得以巧妙实现。设计师凭借精准的现场勘察与专业研判,突破常规限制。入户直面厨房,其排污限制成为改造难点之一;客厅电视墙与卫生间共用,且五分之一为主卧壁橱墙体,这唯一可改动墙体成为破局关键。卫生间主排污管靠近壁橱墙角,为改造提供了可能。拆除壁橱墙体,将主排污管道巧妙纳入,打造座便区域,面盆与沐浴区则在原厨房位置有序布局,防水处理严谨到位,确保空间使用安全与长久。

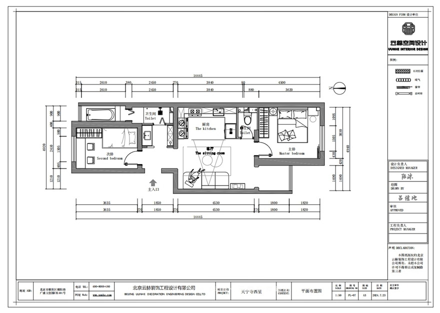
如今,客餐厨一体的空间,完美融合法式中古风格元素。流畅的空间布局、精致的拱形设计、细腻的材质与色彩搭配,营造出开阔而富有韵味的居住环境,使原本的格局得到了脱胎换骨的优化。这套婚房改造案例,不仅是空间的重塑,更是设计智慧与业主浪漫情怀的完美结晶,随着时间推移,这里必将成为业主心中理想的爱巢。

原卫生间改为厨房,解决了排污问题,50 管下水设置合理满足厨房用水需求。盥洗区与淋浴区设计,不仅注重美观,更兼顾入户视角与风水考量,尽显设计的细致入微。面盆对面设置鞋帽柜,巧妙收纳原厨房下水管道,区域分割墙体采用拱形设计,增添法式浪漫韵味;矮墙搭配法式半拱形艺术玻璃,既避免入户直面面盆的尴尬,又为空间增添艺术气息。原厨房阳台摇身一变成为惬意的泡澡空间,合理利用每一寸空间。

主卧虽减少壁橱,但空间宽敞足以容纳衣柜,保证了卧室的收纳功能与舒适度。次卧暂作游戏区,1 米 2 的床与必要收纳设施一应俱全,满足当下生活需求的同时,预留了未来的功能转变空间。


