首 页
云赫
云赫简介
服务流程
荣誉资质
新闻资讯
服务范畴
服务优势
案例
家装案例
别墅设计
办公空间
餐饮空间
商场店面
其他案例
流程
团队
攻略
住宅空间装修攻略
别墅大宅装修攻略
公装空间装修攻略
常见问题
联系
服务热线:
400-8088-180
您当前的位置:
首页
>
经典案例
>
住宅
>
90-150㎡
>
农科院92 ㎡现代原木风老房改造:容纳三代五口的温馨之居
作者:北京云赫装饰工程设计有限公司 日期:2024-11-14 18:30:00 浏览次数:2
次
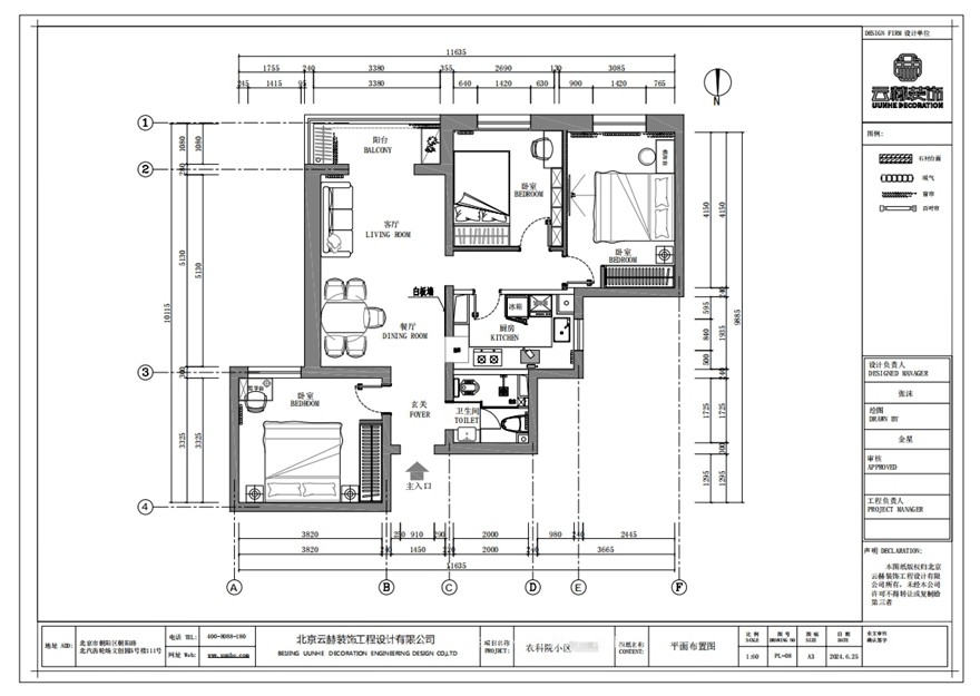
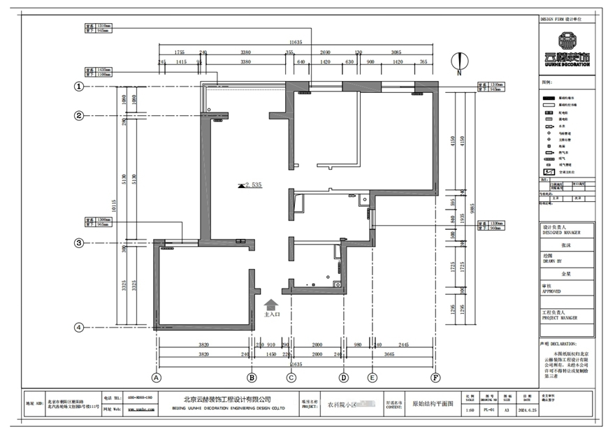
项目位于海淀区农科院小区,套内面积 92 平米,是一套三室两厅一厨一卫的老房子,此次改造旨在为老中少三代五口之家打造舒适的居住空间。
一、空间布局难题与破解之道
卧室规划
:主卧面积 14 平米朝南,由委托人母亲与年幼女儿居住。原宽 3.08 米,床具摆放后虽有 1 米过道,但空间仍显局促。儿童房 8.36 平米同样朝南,儿子即将步入小学,需要独立学习与收纳空间。两间卧室由轻体墙相隔,为重新布局提供可能。通过调整墙体,主卧缩至 2.87 米宽,床后保留 80 公分过道,空间更为舒适。儿童房扩至 2.91 米宽,不仅能容纳 1.5 米床、衣柜,还增设 1 米书桌与整墙书柜,书桌与床之间留出 90 公分过道。改变床的摆放方向,有效避免主卧电视声音干扰孩子学习休息。委托人夫妻居住的次卧 12.8 平米,虽面积第二大,但采光欠佳。
卫生间改造
:仅 3.46 平米的卫生间,既要实现三分离,又要增设为双卫,以满足五口之家日常使用互不干扰。业主接受使用蹲便器,选择小而精的面盆,在有限空间内尽可能实现功能需求。
客餐厅优化
:客餐厅空间不大,业主希望避免冰箱、柜子占用公共区域,选用翻板圆桌,既能满足来客就餐,又方便孩子在此做手工,便于家长照看。客厅摒弃传统电视,计划在电视柜位置放置升降桌,满足日后办公需求。
厨房重塑
:厨房进门处冰箱高达 1.8 米,阻挡光线且影响空间通透感,加之厨房门墙体厚 22 公分不便挪动。同时,因卫生间无法安置洗衣机,且过道不适宜做白板墙,洗衣机需移入厨房。设计师将厨房门改至过道轻体墙面,打造 U 型橱柜,合理规划电器位置。原厨房门口未完全封闭,形成与餐厅的沟通通道,并利用墙洞厚度打造餐边柜,提高空间利用率。
二、细节巧思提升生活品质
厨房墙面焕新
:考虑到过道狭窄昏暗不适宜做白板墙,设计师将白板墙的创意应用于厨房墙面,采用珐琅板替代。搪瓷材质不仅可写可画,还耐高温、可磁吸,易于清理,为厨房增添实用与美观。
空间利用最大化
:通过合理调整墙体与空间布局,每个区域都实现了功能最大化。儿童房在有限面积内满足多种功能需求,厨房电器各归其位,客餐厅兼具休闲与实用功能,整体空间更加流畅、舒适。
此次老房改造,在现代原木风的基础上,通过巧妙的空间布局与细节设计,解决了三代五口之家的居住难题,打造出一个温馨、实用且充满生活气息的家。
上一篇:
胡桃木韵:时尚与沉稳交织的雅居
返回列表
下一篇:
亦庄富源里130平米中式风格老房改造:焕...
推荐阅读信息
北京老房改造|润枫水尚70平日式风格装修案例
北京老房改造案例|55平酒店现代简约风-追求视...
北京新房装修案例|89平垞寂风-最美、最佛系
北京新房装修案例|80平北欧风|一瞬间的色彩聚...
查看更多>>
工程案例
类型
90㎡以下
90-150㎡
150㎡以上
查看更多>>
装修攻略推荐
装修注意环节及怎么样才能更省钱
装修前应该有哪些准备工作
选择装修公司要注意的三点要素
装修如何选择一家靠谱的装修公司?云赫...
现代简约风格怎么装修?注意以下五个要点
老房装修改造注意事项,看完这篇文章再...
现在致电 400-8088-180