嘉诚花园138平米现代简约风住宅设计案例
作者:北京云赫装饰工程设计有限公司 日期:2026-01-08 15:05:40 浏览次数:2次
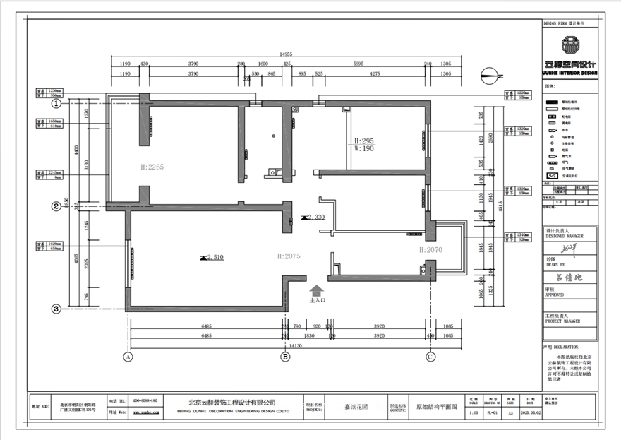
项目地址:北京昌平区
建筑类型:普通住宅
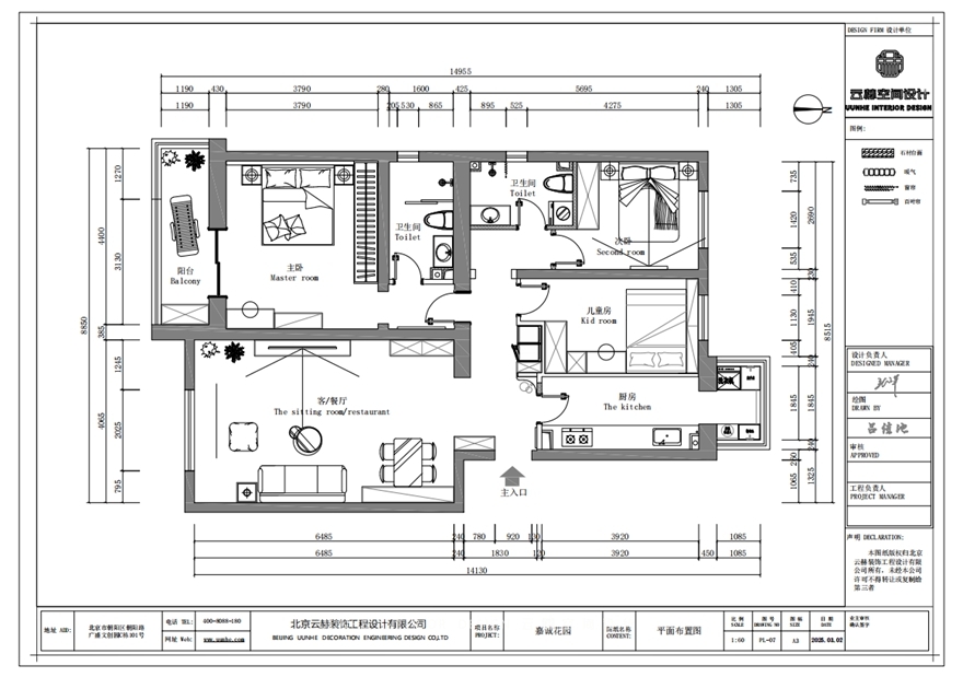
建筑面积:138㎡
居住人口:新婚两口之家
设计说明:本案为 138㎡方正户型,针对新婚夫妻的居住需求,并兼顾未来家庭人口增长的可能性,以现代简约为核心风格,在格局上以 “轻改造、重功能” 为原则,重点优化空间细节与实用功能。



空间改造亮点
客厅以大面积留白打造通透感,同时定制一体化收纳柜,实现 “藏露结合”,既保持空间整洁,又满足日常储物需求,尽显简约而不简单的生活质感。

整体空间以白色、胡桃木色、米色为基底,营造简约自然的居家氛围,局部点缀绿色、蓝色,赋予空间活力与温度:

玄关圆弧化设计:打破传统直角玄关的生硬感,以流畅圆弧线条柔化入户视觉,进门即享开阔舒适的空间体验,同时提升空间的灵动性与层次感。


次卧增设独立卫浴:基于未来家庭人口增加的考量,在次卧区域拓展出独立卫生间,解决单卫使用的局促问题,为后续居住需求预留充足空间。
色彩与功能搭配

儿童房采用蓝色系设计,以明快色彩守护童真天性,预留成长型空间;

老人房以胡桃木色为主调,沉稳大气的木质肌理,契合长辈沉稳内敛的居住喜好;

卫生间选用绿色系,打破纯色卫浴的单调感,为日常洗漱注入清新活力;
